Hickory Grove - 55+ Community

Distance from Current:66 miles
Huntington Pointe Townhomes
Newport News, VA, 23608
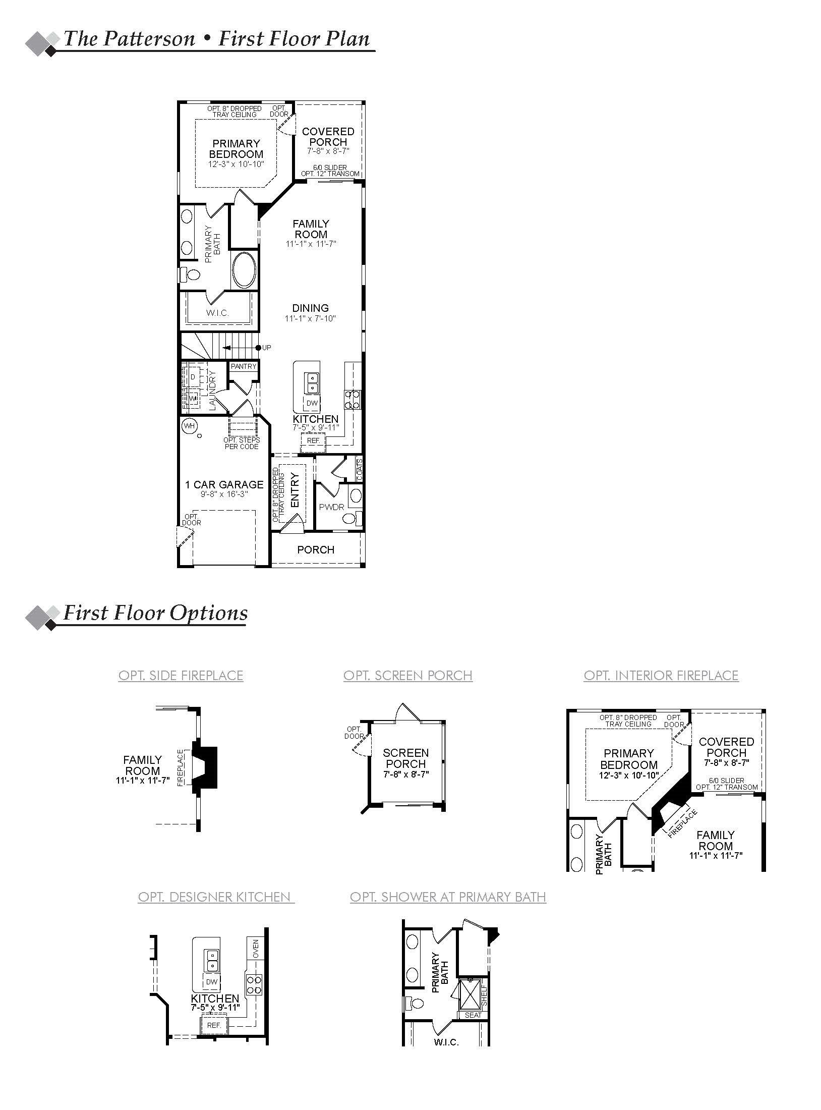
The Patterson is a two-story, three-bedroom, two-and-a-half-bath home with a first-floor primary bedroom, two-story family room, kitchen with island and pantry, a first-floor laundry room, and a covered rear porch. This home also features two bedrooms and a full bath on the second floor, along with a loft area and an oversized unfinished storage area.
Welcome to Newport News, Virginia! In this neighborhood at Huntington Pointe, you can make yourself at home in one of our spacious townhomes. With a convenient location right between Williamsburg and Virginia Beach, you'll always have fun at your fingertips, as well the Newport News/Williamsburg International Airport, Christopher Newport University, and many parks and stores only a quick drive away.